天津市宝坻区人民政府
2019年12月3日星期二
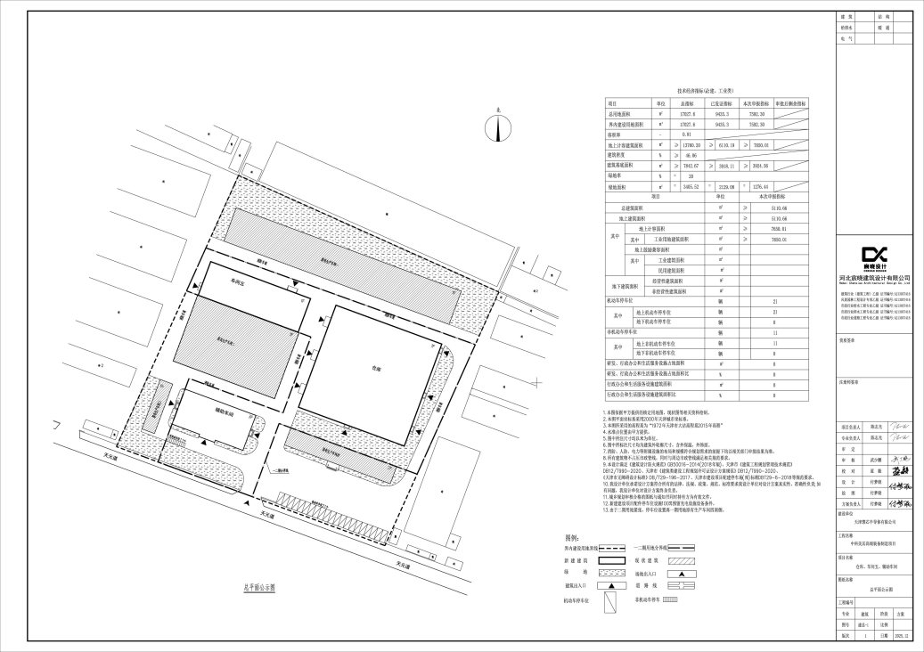
依据《中华人民共和国城乡规划法》和住房城乡建设部《关于城乡规划公开公示的规定》等相关规定要求,现将天津慧芯半导体有限公司申请仓库、车间五、辅助车间项目建设工程设计方案总平面图公示,公示时间为7个工作日( 从2026年1月4日至2026年1月12日)。
建议意见反馈方式:可通过电子邮箱或信件反馈
电子邮箱gzjbdfjjgk@tj.gov.cn
邮寄地址:天津市宝坻区潮阳大道北侧(天津市规划和自然资源局宝坻分局)
邮政编码:301800
征求意见时间为7个工作日,逾期视为无意见。
