天津市宝坻区人民政府
2019年12月3日星期二
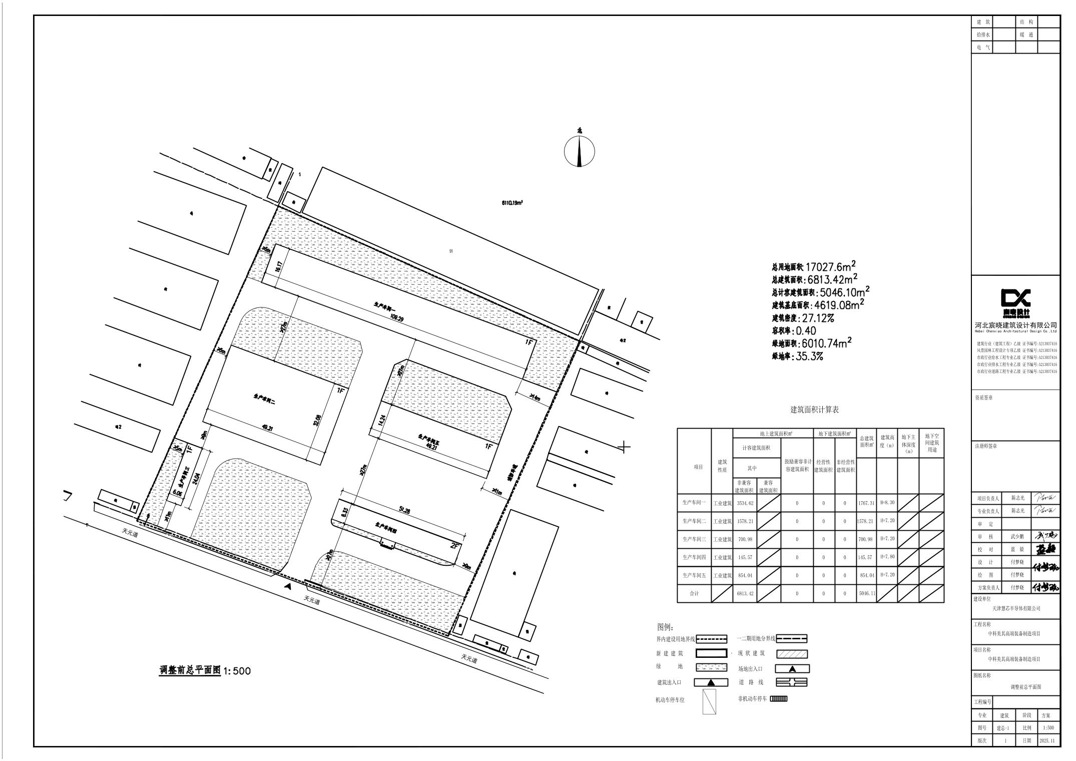
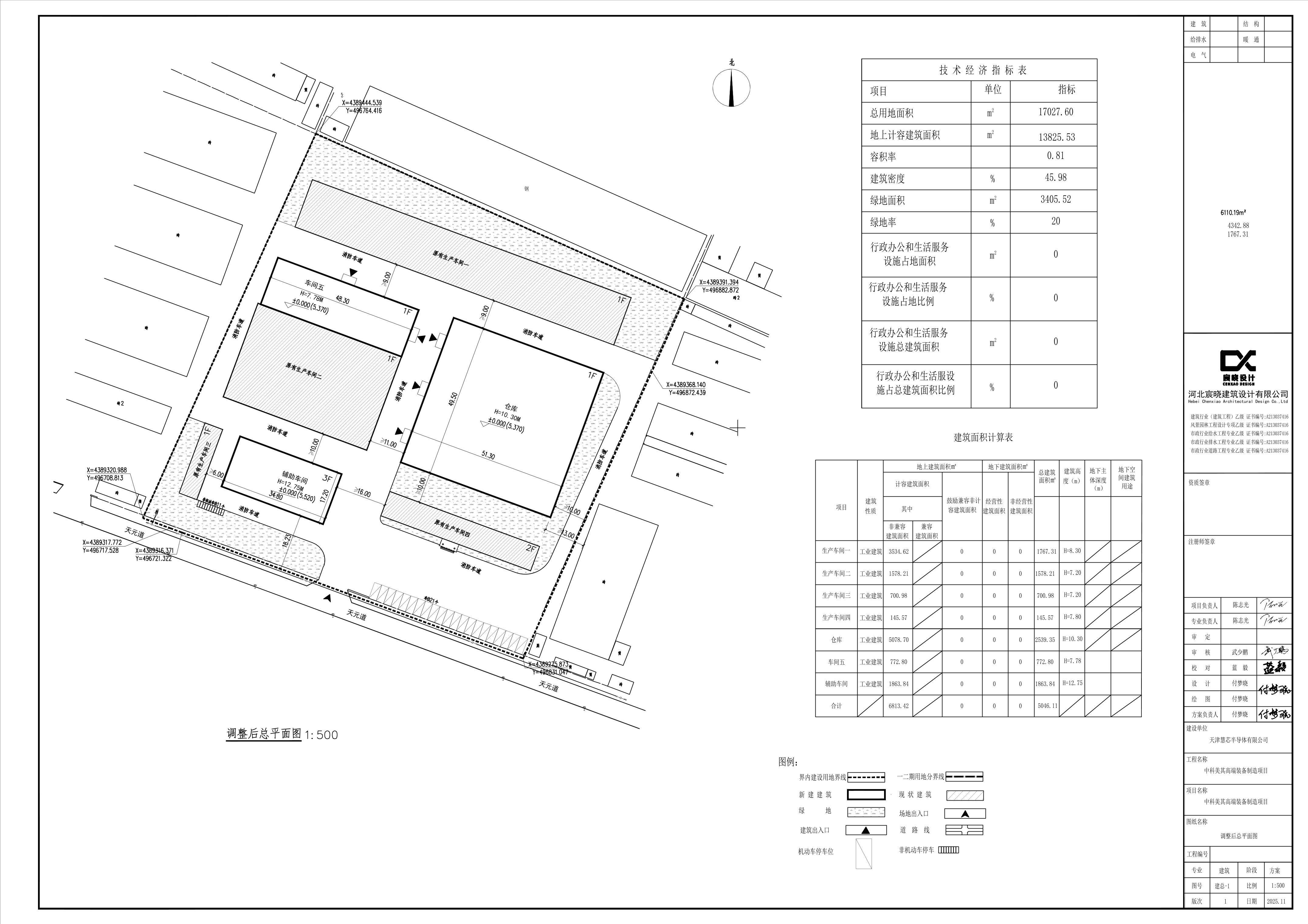
根据《中华人民共和国城乡规划法》、《城市、镇控制性详细规划编制审批办法》、《建设用地容积率管理办法》《天津市建设项目用地控制指标(DB12/T 598-2024)》的有关规定,结合该地块所在单元控制性详细规划,将该地块建设指标进行如下调整:将容积率由0.4调整为容积率≥0.8,绿地率由35.3%调整为≥20%。现将天津慧芯半导体有限公司容积率调整方案予以公示。公示期7个工作日,自2025年11月27日至2025年12月5日。
建议意见反馈方式:可通过电子邮箱或信件反馈
电子邮箱gzjbdfjjgk@tj.gov.cn
邮寄地址:天津市宝坻区潮阳大道北侧(天津市规划和自然资源局宝坻分局)
邮政编码:301800
征求意见时间为7个工作日,逾期视为无意见。

