天津市宝坻区人民政府
2019年12月3日星期二
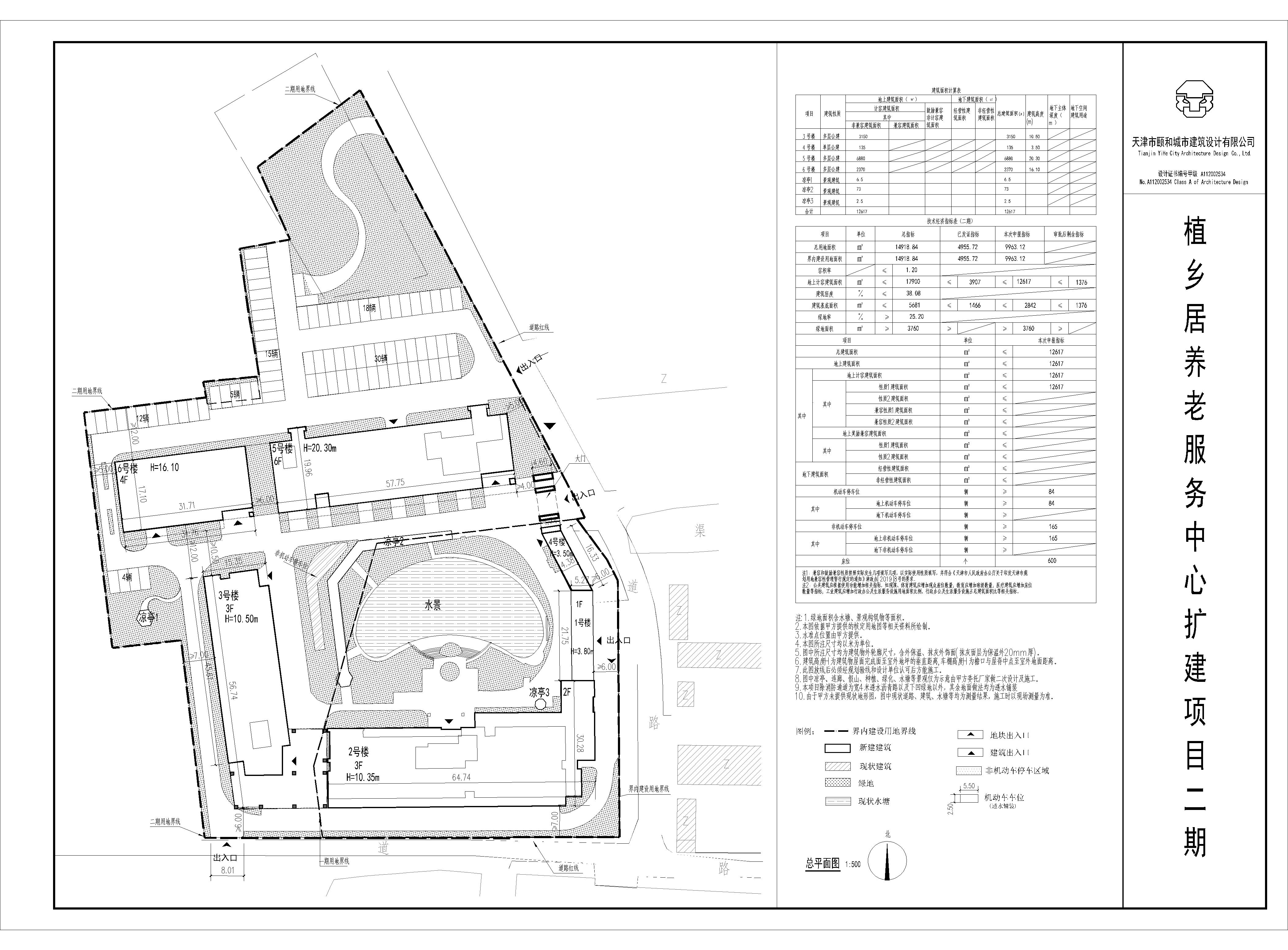
依据《中华人民共和国城乡规划法》和住房城乡建设部《关于城乡规划公开公示的规定》等相关规定要求,现将宝坻区霍各庄镇香铺王村植乡居养老服务中心3号楼、4号楼、5号楼、6号楼、凉亭1、2、3项目建设工程设计方案总平面图公示,公示时间为7个工作日( 从2025年9月30日至2025年10月16日)。
建议意见反馈方式:可通过电子邮箱或信件反馈
电子邮箱gzjbdfjjgk@tj.gov.cn
邮寄地址:天津市宝坻区潮阳大道北侧(天津市规划和自然资源局宝坻分局)
邮政编码:301800
征求意见时间为7个工作日,逾期视为无意见。
