天津市宝坻区人民政府
2019年12月3日星期二
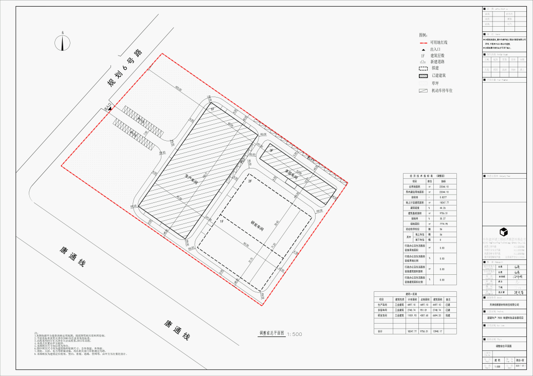
根据《中华人民共和国城乡规划法》、《城市、镇控制性详细规划编制审批办法》、《建设用地容积率管理办法》的有关规定,结合该地块所在单元控制性详细规划,将该地块建设指标进行如下调整:将容积率82.77%调整为容积率≥1.0,绿地率35.27%调整为20%。现将天津拓维新材料科技有限公司容积率调整方案予以公示,公示期7个工作日,自2025年9月28日至2025年10月13日为止。
建议意见反馈方式:可通过电子邮箱或信件反馈
电子邮箱gzjbdfjkflyk@tj.gov.cn
邮寄地址:天津市宝坻区潮阳大道北侧(天津市规划和自然资源局宝坻分局)
邮政编码:301800
征求意见时间为7个工作日,逾期视为无意见。

