天津市宝坻区人民政府
2019年12月3日星期二
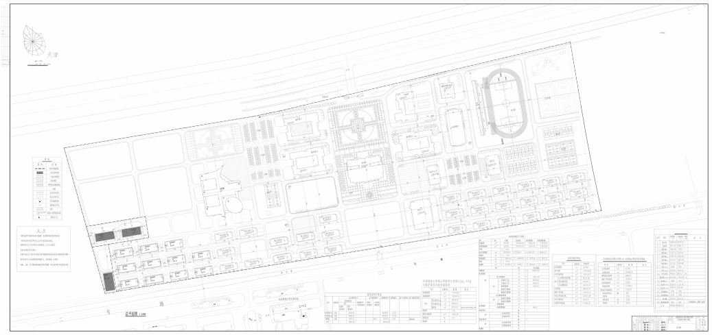
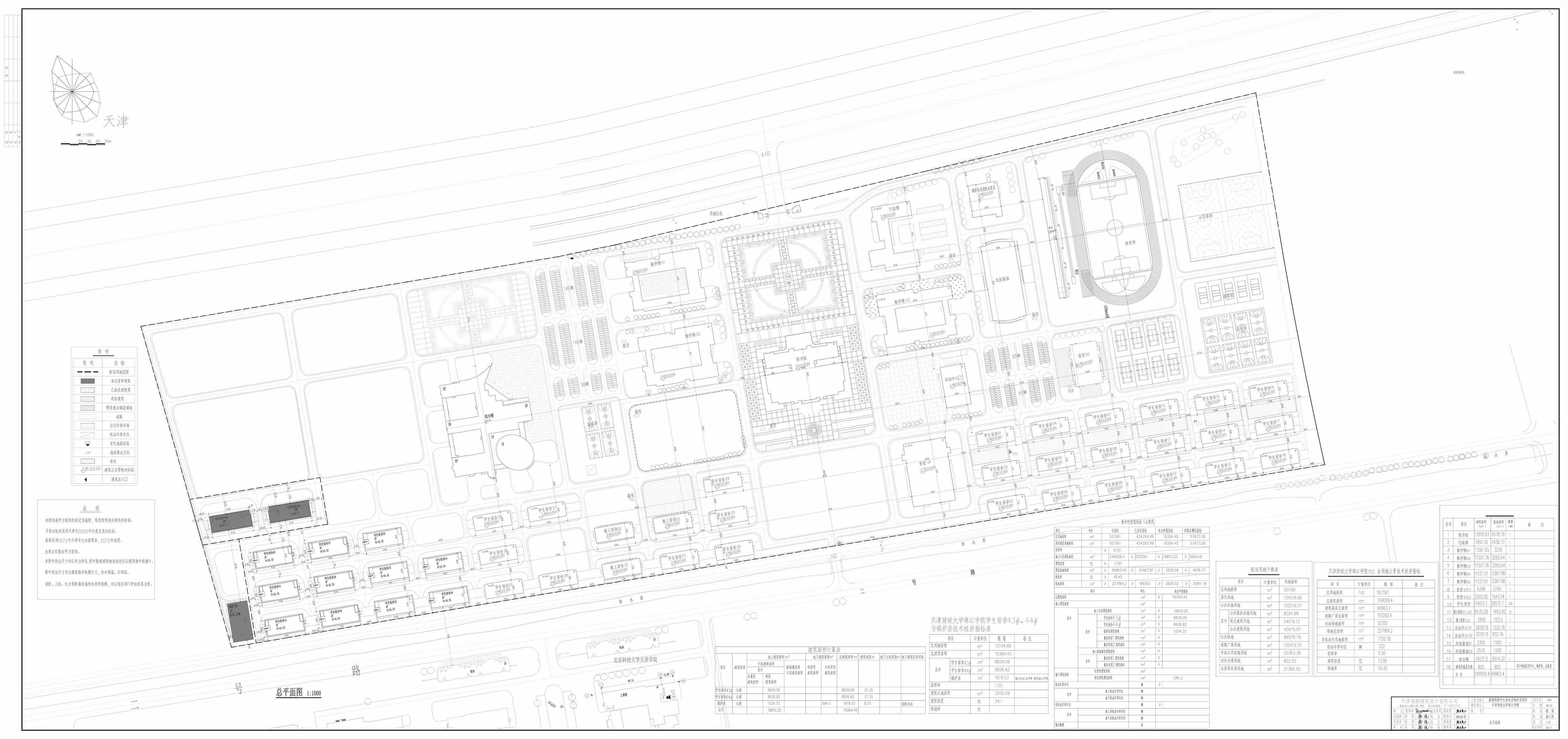
依据《中华人民共和国城乡规划法》和住房城乡建设部《关于城乡规划公开公示的规定》等相关规定要求,天津财经大学珠江学院申请新建学生宿舍楼及配套锅炉房项目建设工程设计方案总平面图公示,公示时间为7个工作日( 从2021年10月18日至2021年10月27日)。
建议意见反馈方式:可通过电子邮箱或信件反馈
电子邮箱gzjbdfjjgk@tj.gov.cn
邮寄地址:天津市宝坻区潮阳大道北侧(天津市规划和自然资源局宝坻分局)
邮政编码:301800
征求意见时间为7个工作日,逾期视为无意见。
